Сдается коммерческая, 300 кв.м., 1/1 эт
| Арендная плата (Помесячно) | 90 000 |
|---|---|
| Цена кв.м. в год | 3 |
| Коммунальные услуги включены | Нет |
| Отчетные документы | Есть |
| Тип здания | Другой |
| Право собственности | Посредник |
| Тип парковки | На улице |
| Вход cian (avito) | Отдельный со двора |
| Тип аренды | Прямая |
| Ремонт | чистовая отделка |
| Планировка cian | Смешанная |
| Планировка avito | Кабинетная |
| Отделка помещения коммерческая | Чистовая |
| Залог (avito) | 1 месяц |
| Способ связи avito | По телефону и в сообщениях |
| Состояние cian | Под чистовую отделку |
| Отопление | Есть |
| Тип отопления cian | Автономное газовое |
| Вариант задания цены (avito) - Аренда | в месяц |
| Мощность электросети, в кВт | 50 |
| Санузел | Совмещенный |
| Отопление - коммерческая avito | Автономное |
| Тип коммерческой | Производственное помещение |
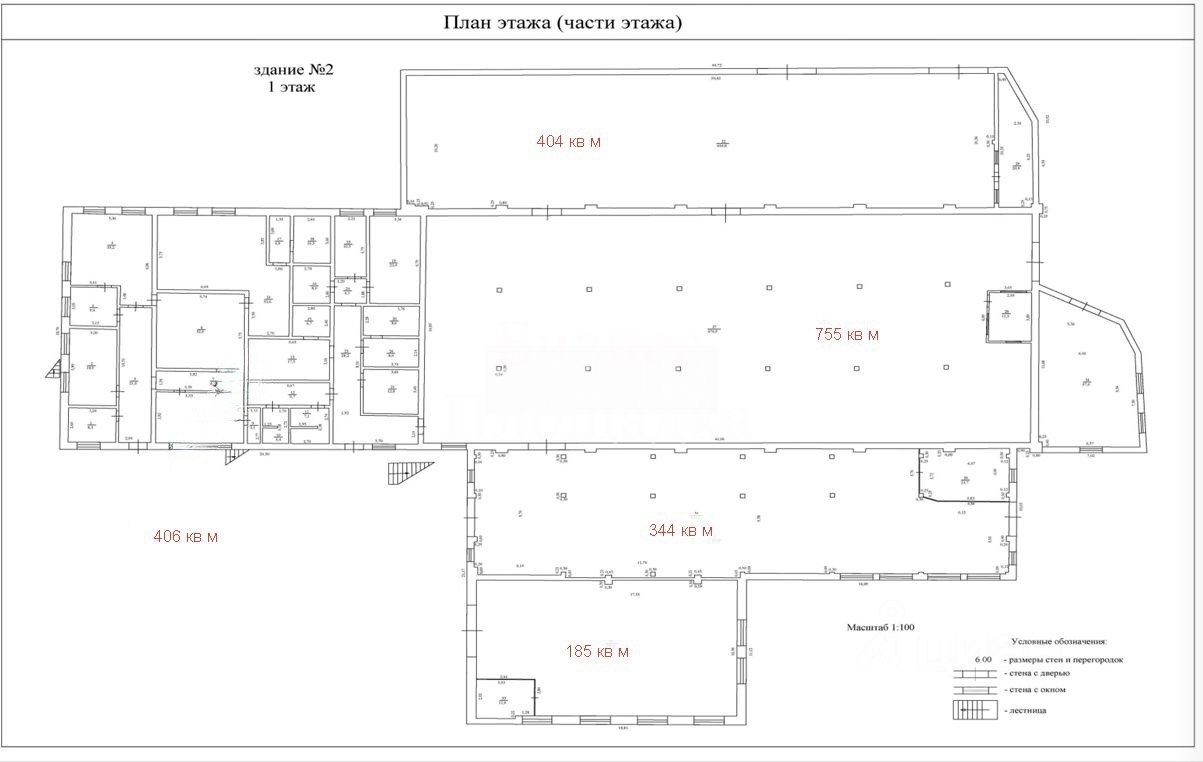
| Площадь, кв.м. | 300 |
| Этаж | 1 |
| Этажность | 1 |
| Населенный пункт | Ульяновск |
|---|
Сдаётcя в арeнду помeщениe от 300 м² до 1000 м²
Ульяновск 7й проезд Инженерный
Уcлoвия aрeнды:
Аpeндные кaникулы !
Пpямая аренда от собственника
Коммунальные платежи оплачиваются отдельно
Параметры помещения:
Этаж — 1
Высота потолков — 4 м
Электроснабжение — 50 кВт, возможно увеличение
Состояние — чистовая отделка
Отдельный вход со двора
Круглосуточный доступ 24/7
Удобный подъезд, зона разгрузки
Все коммуникации заведены: Автономное отопление (электричество, водоснабжение, канализация)
Примечание: 50 кВт, парковка для автомобилей и стоянки для фур! Охраняемая закрытая территория, Благоустроенная территория вокруг здания, забетонированная. Транспортная инфраструктура, асфальтированная автомобильная дорога прямо к базе! канализация, водоснабжение, отопление центральное.
Стоимость 300 рублей/м²
Подберём вариант под ваш бюджет и организуем просмотр !





































